One-way Flow-cassettemodel AUXV024GLEH
Specificaties
| Voedingsbron | Fase | Eenfasig | |
|---|---|---|---|
| Spanning | 230 V | ||
| Frequentie | 50 Hz | ||
| Capaciteit | Koeling | 7.1 kW | |
| Verwarming | 8.0 kW | ||
| Ingangsvermogen | 99 W | ||
| Luchtstroomsnelheid | Koeling | Hoog | 1150 m³/h |
| Middelhoog | 1020 m³/h | ||
| Gemiddeld | 940 m³/h | ||
| Laag-hoog | 790 m³/h | ||
| Laag | 700 m³/h | ||
| Stil | 610 m³/h | ||
| Verwarming | Hoog | 1150 m³/h | |
| Middelhoog | 1020 m³/h | ||
| Gemiddeld | 940 m³/h | ||
| Laag-hoog | 790 m³/h | ||
| Laag | 700 m³/h | ||
| Stil | 610 m³/h | ||
| Geluidsdrukniveau*2 | Koeling | Hoog | 49 dB(A) |
| Middelhoog | 47 dB(A) | ||
| Gemiddeld | 45 dB(A) | ||
| Laag-hoog | 42 dB(A) | ||
| Laag | 39 dB(A) | ||
| Stil | 36 dB(A) | ||
| Verwarming | Hoog | 49 dB(A) | |
| Middelhoog | 47 dB(A) | ||
| Gemiddeld | 45 dB(A) | ||
| Laag-hoog | 42 dB(A) | ||
| Laag | 39 dB(A) | ||
| Stil | 36 dB(A) | ||
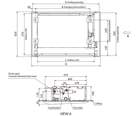
| Netto-afmetingen | Hoogte | 198 mm | |
| Breedte | 1190 mm | ||
| Diepte | 570 mm | ||
| Nettogewicht | 27.0 kg | ||
| Diameter van leidingaansluiting | Vloeistof (Flare) | φ9.52 mm | |
| Gas (Flare) | φ15.88 mm | ||
| Diameter afvoerslang | φ25(I.D.), φ32(O.D.) mm | ||
| EV-set (optioneel) | EV-set (optioneel) | ||
Scroll
- *2.
- De geluidswaarde is de waarde die wordt gemeten in een echovrije kamer. Wanneer gemeten in de feitelijke geïnstalleerde toestand, worden omgevingsgeluiden en reflecties opgevangen en is de gemeten waarde gewoonlijk groter dan de aangegeven waarde.
Afmetingen
Binnendeel : AUXV024GLEH

België | Nederlands