Einweg-Design-Kassette AUXV024GLEH
Spezifikationen
| Stromquelle | Phase | Einphasig | |
|---|---|---|---|
| Spannung | 230 V | ||
| Frequenz | 50 Hz | ||
| Leistung | Kühlen | 7.1 kW | |
| Heizen | 8.0 kW | ||
| Eingangsleistung | 99 W | ||
| Luftdurchsatz | Kühlen | Hoch | 1150 m³/h |
| Mittel hoch | 1020 m³/h | ||
| Mittel | 940 m³/h | ||
| Niedrig Hoch | 790 m³/h | ||
| Niedrig | 700 m³/h | ||
| Leise | 610 m³/h | ||
| Heizen | Hoch | 1150 m³/h | |
| Mittel hoch | 1020 m³/h | ||
| Mittel | 940 m³/h | ||
| Niedrig Hoch | 790 m³/h | ||
| Niedrig | 700 m³/h | ||
| Leise | 610 m³/h | ||
| Schalldruckpegel*2 | Kühlen | Hoch | 49 dB(A) |
| Mittel hoch | 47 dB(A) | ||
| Mittel | 45 dB(A) | ||
| Niedrig Hoch | 42 dB(A) | ||
| Niedrig | 39 dB(A) | ||
| Leise | 36 dB(A) | ||
| Heizen | Hoch | 49 dB(A) | |
| Mittel hoch | 47 dB(A) | ||
| Mittel | 45 dB(A) | ||
| Niedrig Hoch | 42 dB(A) | ||
| Niedrig | 39 dB(A) | ||
| Leise | 36 dB(A) | ||
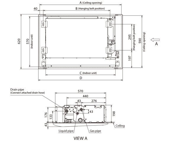
| Netto Abmessungen | Höhe | 198 mm | |
| Breite | 1190 mm | ||
| Tiefe | 570 mm | ||
| Nettogewicht | 27.0 kg | ||
| Verbindungsrohrdurchmesser | Flüssig (Flare) | φ9.52 mm | |
| Gas (Flare) | φ15.88 mm | ||
| Durchmesser des Kondensatschlauchs | φ25(I.D.), φ32(O.D.) mm | ||
Scroll
- *2.
- Der angegebene Lautstärkenwert wurde in einem reflexionsarmen Raum gemessen. When measured in the actual installed state,surrounding noise and reflections are received and the measured value is usually larger than the indicated value.
Abmessungen
Inneneinheit : AUXV024GLEH

Austria | Deutsch